Földszint
103 m2 + 24 m2 terasz
Konyha-étkező-nappali:
Egy térben mégis optikailag szeparálva.
Minden irányban földig ablakokkal, teraszajtókkal, kijárattal a kertbe és a hatalmas teraszra.
Főzés közben is lehet látni a gyerekeket, ha az udvaron játszanak.
A konyha különlegessége egy klassz főzősziget, beépített főzőlappal, frituval, grillezővel és vízvételi lehetőséggel.
Az étkező felett átrium van tetőablakokkal, így ez is mindig napos.
Dolgozó: még mindig egy térben, de elbújtatva.
Fürdőszoba-gardrób-hálószoba:
a fürdőnk mindig nagy sikert arat, mert rendhagyó módon a padlót is fával burkoltuk. Emiatt, a térben álló kád, az épített íves zuhanyzó és az egészen egyedi dizájn miatt tényleg szobaszerű.
Kellemes méretű gardrób köti össze a fürdőt és a hálót, tehát egymásból is nyílnak, így el lehet vonulni, ha úgy adódik.
A hálóban az extra méretű franciágy mellett kényelmesen elfér egy babaágy és a baba holmik is, ha éppen arra van szükség,
s innen is nyílik egy szép terasz romantikus reggelekhez.
És persze előszoba és vendég WC is van a földszinten.
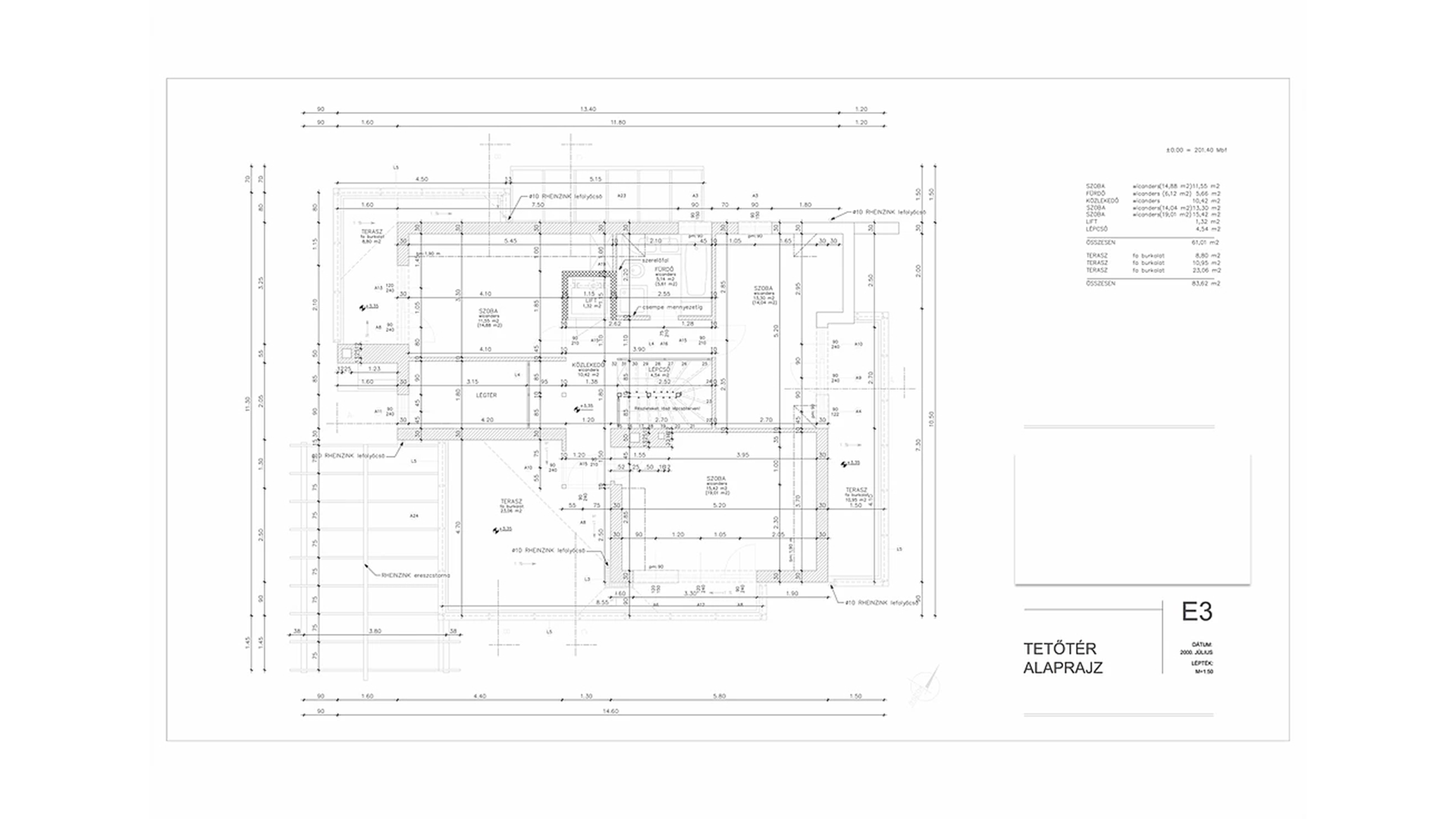
Emelet
71 m2 + 43 m2 terasz
Az emelet egy kicsit kisebb mint a többi szint, mert nekünk elég volt három, jó méretű szoba és egy fürdő.
Cserébe viszont itt is van egy nagy, napsütötte terasz.
A hálószobák most gyerekszobák-ként működnek, amiből kettő – bár külön bejáratú – a közöttük lévő dupla ajtóval egybe is nyitható, amit a fiatalabb korosztály nagyon élvez.
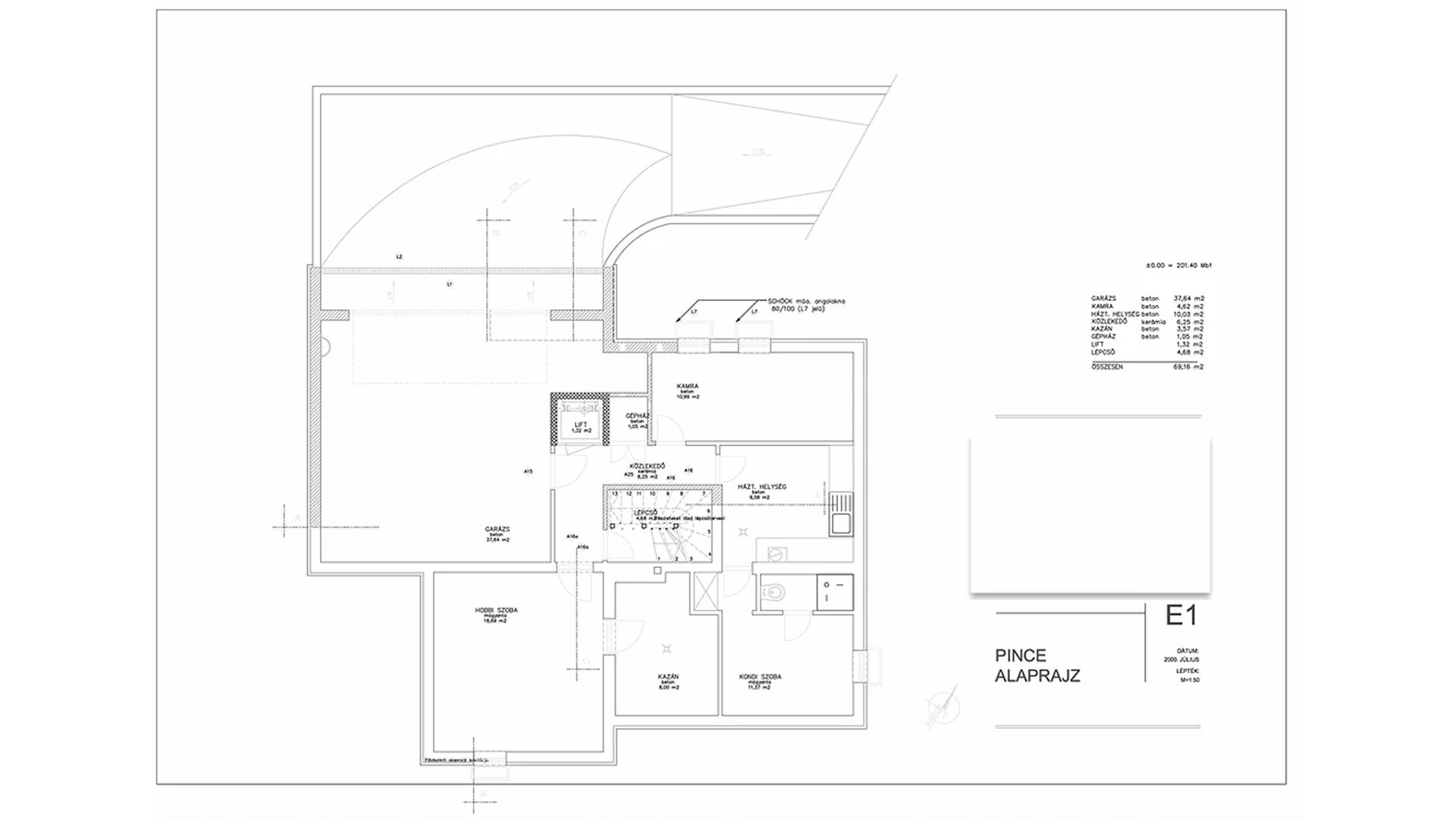
Pince
109 m2
2 állásos garázs + 1 motor beálló (mi itt további 5 bringát is tárolunk).
Mosókonyha /gardrób – óriási egyben tér (nekünk futópadunk is van itt).
Kamra-tároló és rumliszoba, de bármire lehet használni.
Ablakos, világos óriás méretű hobby szoba, ami kilóg a ház alól, ezért motorosan nyitható bevilágító ablakai vannak.
Gépészeti helyiség, mosdóval, wc-vel.


